CHO THUÊ NHÀ XƯỞNG – KCN SÔNG MÂY, ĐN – 9.344m²

  • Giá : /tháng
  • Diện tích :
Thông tin mô tả
CHO THUÊ NHÀ XƯỞNG – KCN SÔNG MÂY, ĐN – 9.344m²

Thông tin chi tiết
Vị trí: Khu Công Nghiệp Sông Mây, Huyện Trảng Bom, Tỉnh Đồng Nai
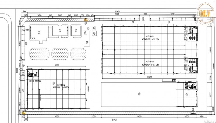
Tổng diện tích khuôn viên: 25.000m²
Tổng diện tích xây dựng: 9.344m² (gồm 2 nhà xưởng)
Tiến độ: Đang hoàn thiện giấy phép xây dựng, dự kiến bàn giao tháng 7/2026

Quy mô công trình
Xưởng 1: 3.200m² (nhà máy 3.087,5m², văn phòng 225m² – 1 trệt 1 lầu trong xưởng)
Xưởng 2: 6.144m² (nhà máy 5.844m², văn phòng 600m² – 1 trệt 1 lầu trong xưởng)
Chiều cao: 12,5m đỉnh mái – 10m biên
Trang bị 2 cẩu trục 5 tấn/xưởng, chạy dọc toàn bộ xưởng ở cao độ 7,5m

Tiêu chuẩn kỹ thuật
Hệ thống PCCC tự động chuẩn quốc tế (Sprinkler + báo cháy hiện đại)
Kết cấu khung thép tiền chế, sàn bê tông chịu tải cao, nền phẳng tiêu chuẩn xuất khẩu
Hệ thống điện 3 pha công suất lớn, thoát nước – cấp nước đạt chuẩn KCN
Đường nội bộ rộng, container 40 feet ra vào thuận tiện

Liên hệ
CÔNG TY TNHH MTV QUÝ LỘC VƯỢNG
Hotline: 0931 769 444
Website: https://nhaxuongchinhchu.vn
CHO THUÊ NHÀ XƯỞNG – KCN SÔNG MÂY, ĐN – 9.344m²

Đặc điểm bất động sản

Mã tin:
766461
Ngày đăng:
05/02/2026

Thông tin liên hệ

Tên liên hệ:
TUYẾT TRINH
Điện thoại:
0706266476
Email:
letuyettrinh0910@gmail.com
Xem bất động sản cùng người đăng

Bất động sản khác

Cho thuê nhà xưởng cực rộng, hơn 1Ha tại KCN AMATA Biên Hoà

Cho thuê nhà xưởng cực rộng, hơn 1Ha tại KCN AMATA Biên Hoà

Cho thuê nhà xưởng cực rộng, hơn 1Ha tại KCN AMATA Biên Hoà

1050 triệu/tháng
11000 m²
Phường Long Bình , Đồng Nai
12/03/2025

Bất động sản cùng người đăng

CHO THUÊ NHÀ XƯỞNG PHƯỚC TÂN, BIÊN HÒA, ĐN - 5.600m²

CHO THUÊ NHÀ XƯỞNG PHƯỚC TÂN, BIÊN HÒA, ĐN - 5.600m²

CHO THUÊ NHÀ XƯỞNG PHƯỚC TÂN, BIÊN HÒA, ĐN - 5.600m²

180 triệu/tháng
0 m²
Phường Phước Tân , Đồng Nai
15/01/2026

BÁN ĐẤT KCN – KCN HỐ NAI 3, ĐN – 5.000m²

BÁN ĐẤT KCN – KCN HỐ NAI 3,  ĐN – 5.000m²

BÁN ĐẤT KCN – KCN HỐ NAI 3, ĐN – 5.000m²

24 tỷ
0 m²
Phường Biên Hòa , Đồng Nai
20/01/2026

CHO THUÊ NHÀ XƯỞNG GỖ – BÌNH MINH, TRẢNG BOM – 7.000m²

CHO THUÊ NHÀ XƯỞNG GỖ – BÌNH MINH, TRẢNG BOM – 7.000m²

CHO THUÊ NHÀ XƯỞNG GỖ – BÌNH MINH, TRẢNG BOM – 7.000m²

350 triệu/tháng
0 m²
Xã Trảng Bom , Đồng Nai
22/01/2026