Cho thuê nhà xưởng – KCN Mỹ Phước, Bến Cát, Bình Dương – 2.022m²

  • Giá : /tháng
  • Diện tích :
Thông tin mô tả
Cho thuê nhà xưởng – KCN Mỹ Phước, Bến Cát, Bình Dương – 2.022m²
Thông tin chi tiết
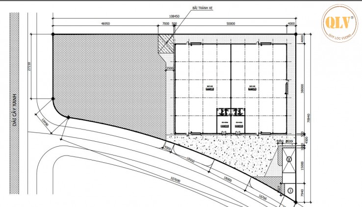
Vị trí: Khu Công Nghiệp Mỹ Phước, Bến Cát, Tỉnh Bình Dương
Tổng diện tích khuôn viên: 5.228m²
Diện tích xây dựng: 2.022m²
Trong đó
Nhà xưởng: 1.900m² (38m x 50m)
Văn phòng: 50m²
Công trình phụ trợ đầy đủ
Hạ tầng điện nước hoàn chỉnh
Nằm trong KCN, xe container ra vào thuận tiện
Đường nội khu rộng, phù hợp sản xuất – kho bãi
Tiện ích & đặc điểm
Xưởng phù hợp làm kho hoặc nhiều ngành nghề sản xuất
Kết cấu xưởng kiên cố, thông thoáng
Hệ thống PCCC theo tiêu chuẩn
Vị trí đẹp trong KCN, kết nối giao thông thuận lợi
Liên hệ
CÔNG TY TNHH MTV QUÝ LỘC VƯỢNG
Hotline: 0931 769 444
Website: https://nhaxuongmiennam.vn
Cho thuê nhà xưởng – KCN Mỹ Phước, Bến Cát, Bình Dương – 2.022m²

Đặc điểm bất động sản

Mã tin:
775105
Ngày đăng:
28/03/2026

Thông tin liên hệ

Tên liên hệ:
chihoqlv
Điện thoại:
0933531306
Email:
chihoqlv08@gmail.com
Xem bất động sản cùng người đăng

Bất động sản khác

CHO THUÊ NHÀ XƯỞNG 27000M SẢN XUẤT TẠI TÂN UYÊN BÌNH DƯƠNG

CHO THUÊ NHÀ XƯỞNG 27000M SẢN XUẤT TẠI TÂN UYÊN BÌNH DƯƠNG

CHO THUÊ NHÀ XƯỞNG 27000M SẢN XUẤT TẠI TÂN UYÊN BÌNH DƯƠNG

0 triệu/tháng
27000 m²
Xã Phước Thành , Hồ Chí Minh
27/05/2025

CHO THUÊ NHÀ XƯỞNG SẢN XUẤT TÂN UYÊN - BÌNH DƯƠNG

CHO THUÊ NHÀ XƯỞNG SẢN XUẤT TÂN UYÊN - BÌNH DƯƠNG

CHO THUÊ NHÀ XƯỞNG SẢN XUẤT TÂN UYÊN - BÌNH DƯƠNG

0 triệu/tháng
5720 m²
Xã Tân Uyên , Hồ Chí Minh
20/05/2025

Bất động sản cùng người đăng

CHO THUÊ NHÀ XƯỞNG – BÌNH MỸ, TÂN UYÊN, BÌNH DƯƠNG – 3.500m²

CHO THUÊ NHÀ XƯỞNG – BÌNH MỸ, TÂN UYÊN, BÌNH DƯƠNG – 3.500m²

CHO THUÊ NHÀ XƯỞNG – BÌNH MỸ, TÂN UYÊN, BÌNH DƯƠNG – 3.500m²

280 triệu/tháng
0 m²
Phường Tân Uyên , Hồ Chí Minh
23/01/2026

CHO THUÊ NHÀ XƯỞNG – DĨ AN, BÌNH DƯƠNG – 29.465m²

CHO THUÊ NHÀ XƯỞNG – DĨ AN, BÌNH DƯƠNG – 29.465m²

CHO THUÊ NHÀ XƯỞNG – DĨ AN, BÌNH DƯƠNG – 29.465m²

/tháng
0 m²
Phường Dĩ An , Hồ Chí Minh
29/01/2026

CHO THUÊ NHÀ XƯỞNG – DĨ AN, BÌNH DƯƠNG – 12.425m²

CHO THUÊ NHÀ XƯỞNG – DĨ AN, BÌNH DƯƠNG – 12.425m²

CHO THUÊ NHÀ XƯỞNG – DĨ AN, BÌNH DƯƠNG – 12.425m²

/tháng
0 m²
Phường Dĩ An , Hồ Chí Minh
30/01/2026