CHO THUÊ NHÀ XƯỞNG – KCN ĐỒNG XOÀI, BP – 27.281m²

  • Giá : /tháng
  • Diện tích :
Thông tin mô tả
CHO THUÊ NHÀ XƯỞNG – KCN ĐỒNG XOÀI, BP – 27.281m²
Thông tin chi tiết
Vị trí: Khu Công Nghiệp Đồng Xoài, Tỉnh Bình Phước
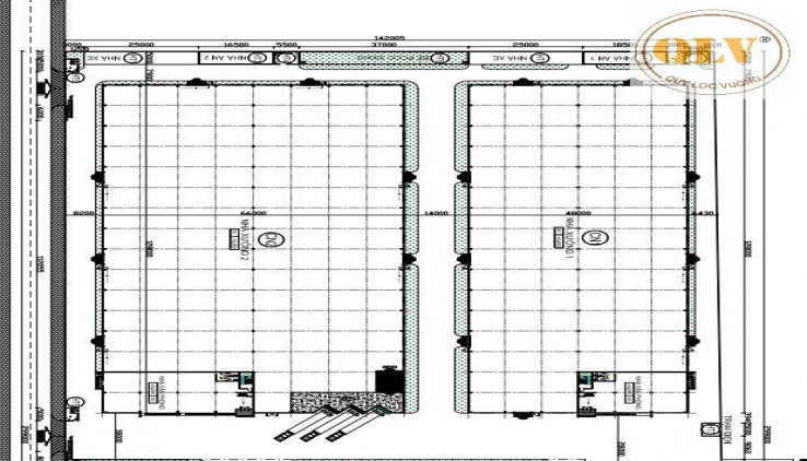
Tổng diện tích khuôn viên: 42.945m²
Tổng diện tích xây dựng: 27.281m²
Đất SKK, đóng tiền 1 lần, thời hạn sử dụng đến năm 2059
Quy mô xây dựng
Giai đoạn 1
Quỹ đất: 23.019m²
Diện tích xây dựng: 14.877m²
Xưởng 1: 6.144m² (48×128m)
Xưởng 2: 8.448m² (66×128m)
Giai đoạn 2
Quỹ đất: 19.888m²
Diện tích xây dựng: 12.404m²
Xưởng 3 và văn phòng: 12.000m² (100×120m)
Còn lại là các công trình phụ trợ
Tiện ích & đặc điểm
Kết cấu nhà xưởng kiên cố, khung thép tiền chế, nền bê tông chịu tải cao
Hệ thống PCCC đạt tiêu chuẩn KCN
Điện 3 pha công suất lớn, nước máy đầy đủ
Giao thông nội bộ thông thoáng, xe container ra vào thuận tiện
Phù hợp cho sản xuất, kho bãi, chế biến hoặc logistic
Vị trí thuận lợi
Nằm trong KCN Đồng Xoài – khu công nghiệp trọng điểm của Bình Phước, kết nối trực tiếp với Quốc lộ 14, cao tốc TP Hồ Chí Minh – Chơn Thành – Đắk Nông, thuận tiện vận chuyển hàng hóa và kết nối vùng
Liên hệ
CÔNG TY TNHH MTV QUÝ LỘC VƯỢNG
Hotline: 0931 769 444
Website: https://nhaxuongchinhchu.vn
CHO THUÊ NHÀ XƯỞNG – KCN ĐỒNG XOÀI, BP – 27.281m²

Đặc điểm bất động sản

Mã tin:
766662
Ngày đăng:
06/02/2026

Thông tin liên hệ

Tên liên hệ:
Linhqlv
Điện thoại:
0911493768
Email:
linhnguyen.qlv@gmail.com
Xem bất động sản cùng người đăng

Bất động sản khác

Cho thuê nhà xưởng cực rộng, hơn 1Ha tại KCN AMATA Biên Hoà

Cho thuê nhà xưởng cực rộng, hơn 1Ha tại KCN AMATA Biên Hoà

Cho thuê nhà xưởng cực rộng, hơn 1Ha tại KCN AMATA Biên Hoà

1050 triệu/tháng
11000 m²
Phường Long Bình , Đồng Nai
12/03/2025

Bất động sản cùng người đăng

BÁN NHÀ XƯỞNG – TRẢNG BOM, ĐỒNG NAI – 40.313m²

BÁN NHÀ XƯỞNG – TRẢNG BOM, ĐỒNG NAI – 40.313m²

BÁN NHÀ XƯỞNG – TRẢNG BOM, ĐỒNG NAI – 40.313m²

65 tỷ
0 m²
Xã Trảng Bom , Đồng Nai
19/01/2026

CHO THUÊ NHÀ XƯỞNG – KCN DẦU GIÂY, ĐN – 21.850m

CHO THUÊ NHÀ XƯỞNG – KCN DẦU GIÂY, ĐN – 21.850m

CHO THUÊ NHÀ XƯỞNG – KCN DẦU GIÂY, ĐN – 21.850m

/tháng
0 m²
Phường Biên Hòa , Đồng Nai
19/01/2026

CHO THUÊ NHÀ XƯỞNG – KCN LONG ĐỨC, ĐN – 33.000m²

CHO THUÊ NHÀ XƯỞNG – KCN LONG ĐỨC, ĐN – 33.000m²

CHO THUÊ NHÀ XƯỞNG – KCN LONG ĐỨC, ĐN – 33.000m²

/tháng
0 m²
Xã Long Thành , Đồng Nai
20/01/2026

CHO THUÊ NHÀ XƯỞNG – KCN SÔNG MÂY, ĐN – 9.344m²

CHO THUÊ NHÀ XƯỞNG – KCN SÔNG MÂY, ĐN – 9.344m²

CHO THUÊ NHÀ XƯỞNG – KCN SÔNG MÂY, ĐN – 9.344m²

/tháng
0 m²
Xã Trảng Bom , Đồng Nai
21/01/2026

CHO THUÊ NHÀ XƯỞNG – KCN HỐ NAI, ĐN – 55.928m²

CHO THUÊ NHÀ XƯỞNG – KCN HỐ NAI,  ĐN – 55.928m²

CHO THUÊ NHÀ XƯỞNG – KCN HỐ NAI, ĐN – 55.928m²

/tháng
0 m²
Xã Trảng Bom , Đồng Nai
21/01/2026

CHO THUÊ NHÀ XƯỞNG – KCN LỘC AN,  ĐN – 56.000m²

CHO THUÊ NHÀ XƯỞNG – KCN LỘC AN,  ĐN – 56.000m²

CHO THUÊ NHÀ XƯỞNG – KCN LỘC AN,  ĐN – 56.000m²

/tháng
0 m²
Xã An Phước , Đồng Nai
22/01/2026